Skip links

Urban life Style. Urban life Style.

Principal Group is a trusted and forward-thinking real estate development company committed to building high-quality, affordable homes.

Razzak Principal Place Razzak Principal Place

Total Apartment Units
16
Project Details.

Razzak Principal Place (Jalshiri-03)

Location : Sector # 17, Road # 502H, Plot # 04, Jolshiri Abason, Dhaka

Building Name

Razzak Principal Place (Jalshiri-03)

Total Land Area

238900 Sq Feet

Swimming Pool

Available

Bathrooms

1800

Bedrooms

23+

Total Unit Number

23

Bathrooms

23

Total Unit Number

16

Bathrooms

30+

Swimming Pool

Not Available

Bedrooms

23

Status

ONGOING

Razzak Principal Place Razzak Principal Place

Razzak Principal Place Elevate Your Lifestyle

Razzak Principal Place represents the pinnacle of modern, safe, and convenient urban living. Strategically designed with a commitment to quality, this landmark residence features an Earthquake-Safe Structure and comprehensive Advanced Fire Safety measures, ensuring peace of mind for every resident.

Safety and comfort are paramount, secured by 24/7 CCTV Security and Secured Basement Parking. The convenience of Full Power Backup and High-Speed Elevators guarantees an uninterrupted experience.

Razzak Principal Place (Jalshiri-03)

About

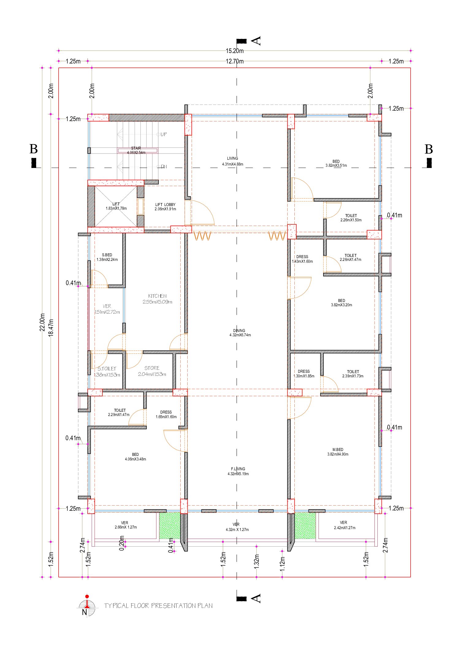
Floor Plan.

Razzak Principal Place (Jalshiri-03)l, Location: Sector # 17, Road # 502H, Plot # 04, Jolshiri Abason, Dhaka

Unite Type

A

Bedrooms

4 Units

Bathrooms

5 Units

Veranda

3

Kitchen

1

Dining & Drawing

1 + 1

Apartment Unit Size

SFT-2000

Bedroom

BedRoom-1

Bedroom

Bedroom-2

Bedroom

Bedroom-3

Bedroom

Bedroom-3

Features & Amenities

Our work strives to enhance our sense of place, identity and relationship to others and the physical spaces we inhabit, whether feral or human-made.

Secure Garage Parking

Rooftop Green Garden

24/7 CCTV Security

Full Power Backup

High-Speed Elevators

Advanced Fire Safety

Elegant Reception Lobby

Elegant Reception Lobby

Premium Utility Fittings

Efficient Waste System

Earthquake-Safe Structure

Resident Service Desk

Send a message

    Contract US!
    Explore
    Drag